Publié par Cardis le 21.08.2025
0 min de lecture
L’Orée du Léman
Pully est une charmante commune de l’Est Lausannois, située dans le district de Lavaux-Oron, au bord du Lac Léman. Elle bénéficie d’un accès privilégié à la capitale vaudoise et à toutes ses infrastructures.
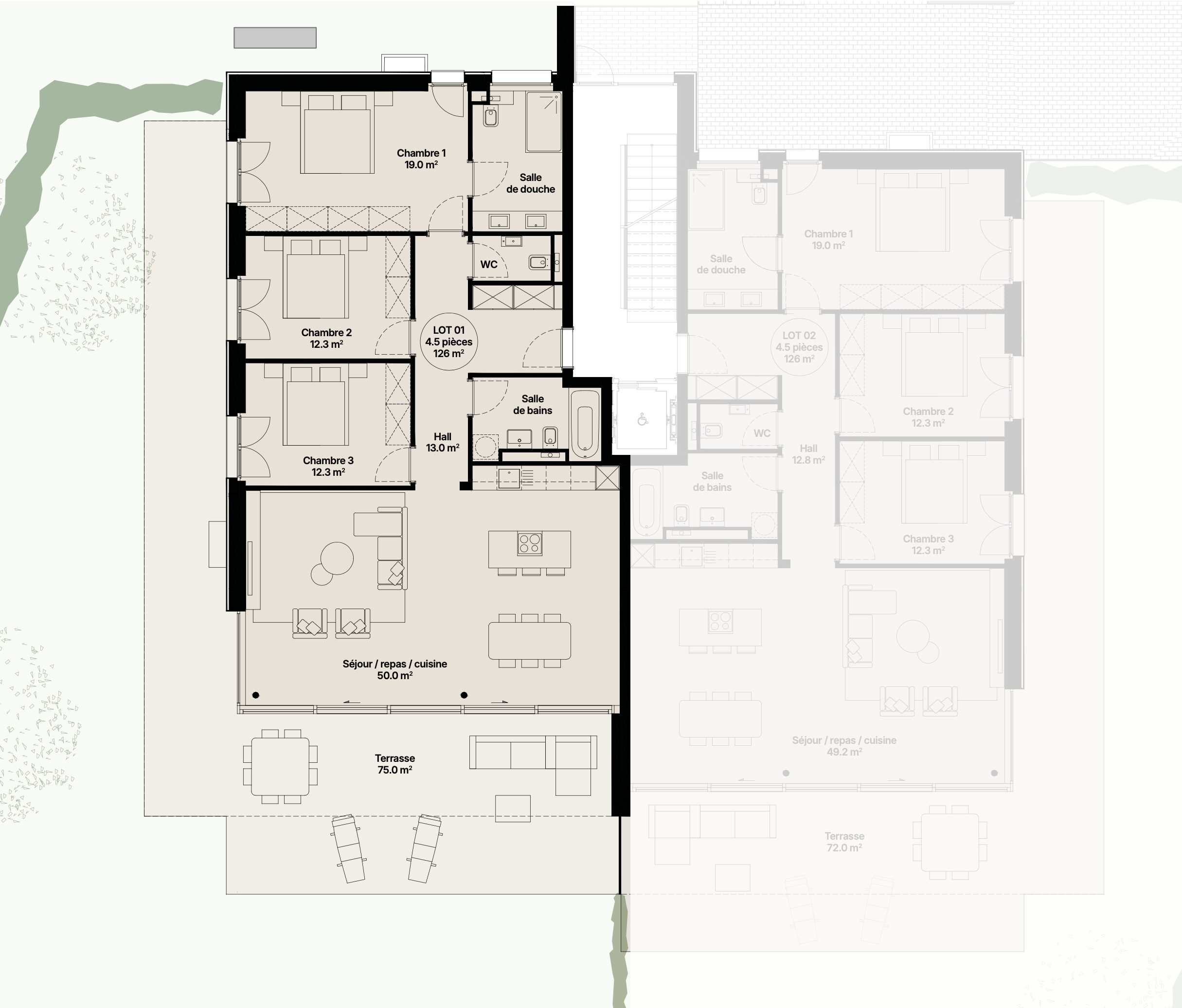
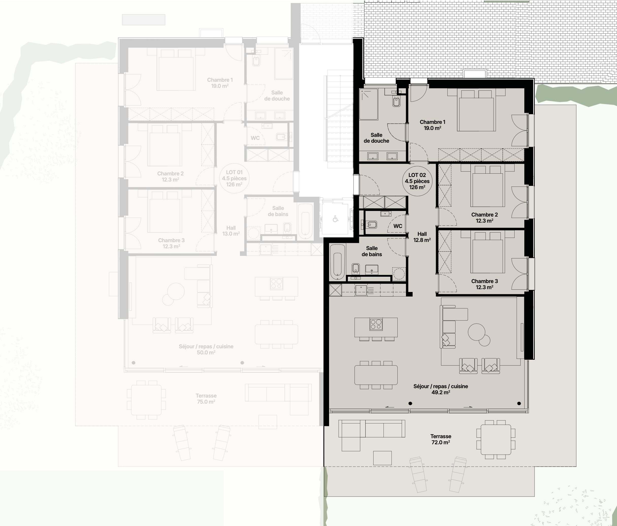
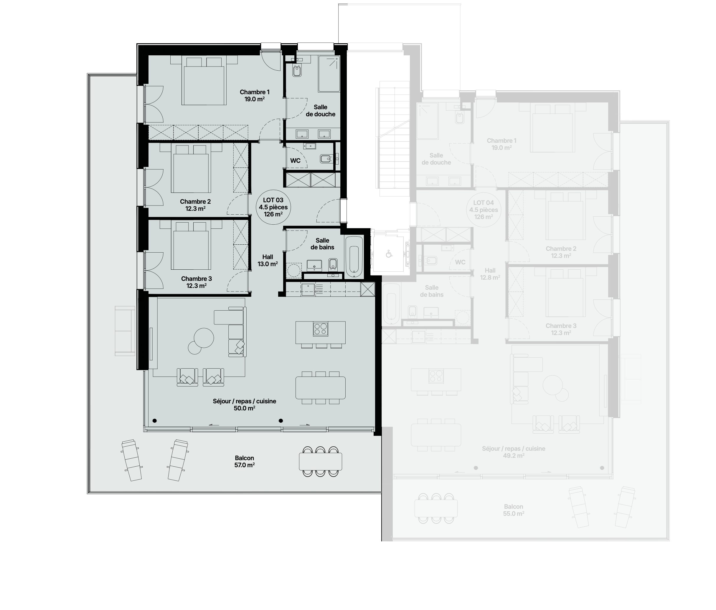
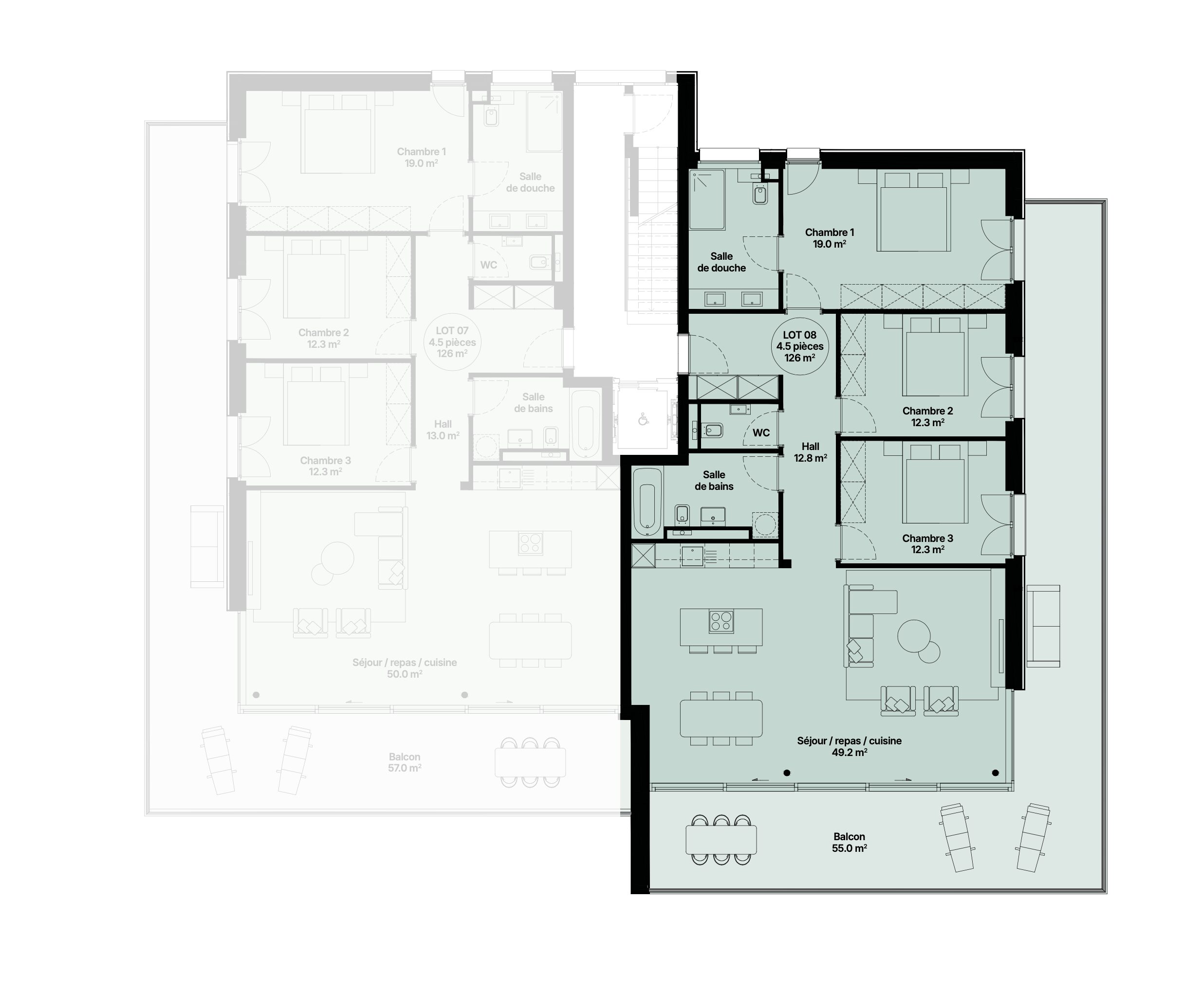
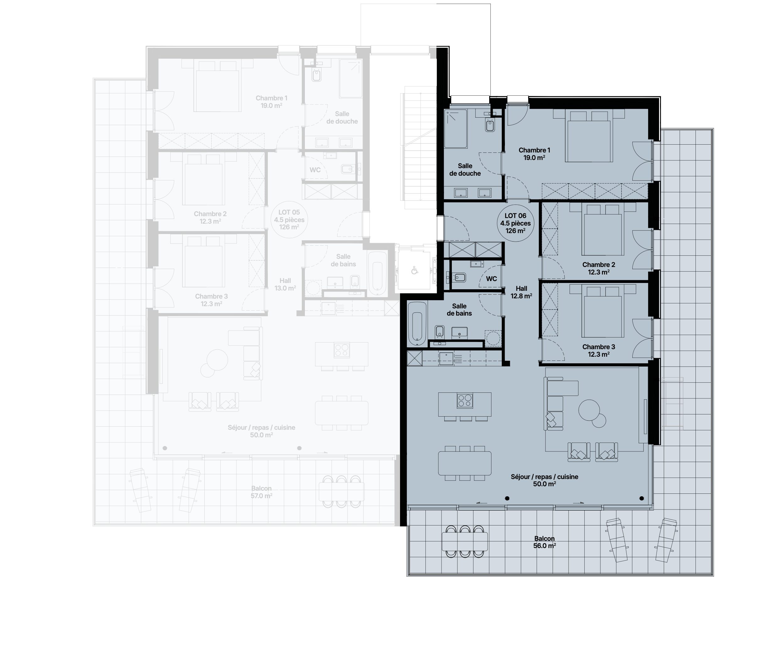
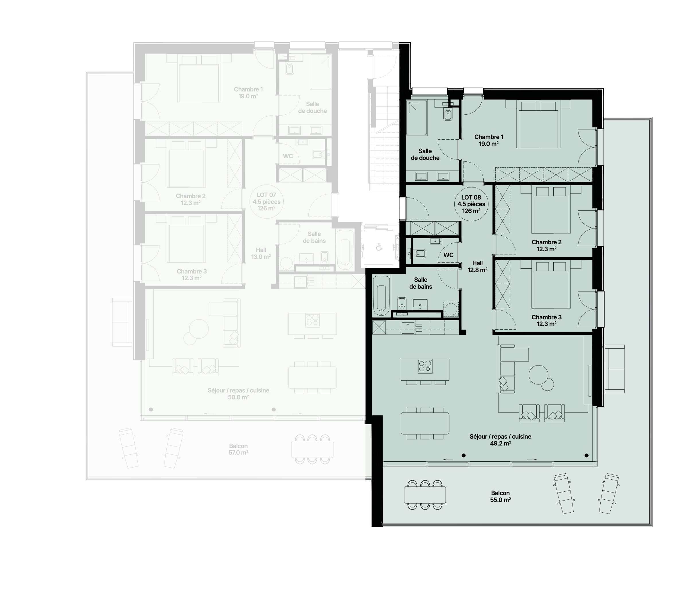
Liste des lots à vendre

EXCLUSIVITÉ

1009 Pully
9 lots
5 étages
12 places

Exclusivité
L’Orée du Léman
Promotion Cardis
1009 Pully
9 lots
5 étages
12 places
5 étages, 9 appartements lumineux face au lac
Quartier calme, proche des commerces et des écoles
Des finitions élégantes et raffinées
Des intérieurs modulables selon vos envies
Construction et actions durables
Située au coeur de Pully, la Résidence L’Orée du Léman allie élégance architecturale, confort moderne et construction durable. Conçu en béton armé recyclé, le bâtiment préserve les ressources naturelles en limitant l’extraction de gravier, tout en offrant une robustesse et une sécurité exemplaires.

En savoir plus
N’hésitez pas à nous contacter pour de plus amples informations dans le cadre de ce projet

Les choix architecturaux et les matériaux sélectionnés traduisent une volonté claire : offrir aux futurs résidents un cadre de vie d’exception, à la fois contemporain, chaleureux et intemporel.
Demande de dossier
Contactez nos experts pour une visite

























